Altijd al landelijk willen wonen in woning die van alle gemakken is voorzien? Dan is dit uw kans! Deze mooie vrijstaande woning gelegen op een ruim perceel met een achtertuin op het zuidwesten, heeft vele pluspunten. Een heerlijk huis op een vrije ligging met vijf slaapkamers. De woning is netjes onderhouden en biedt ruimte voor modernisering. Een lagere school is in het dorp aanwezig, net als een kleine supermarkt en sportverenigingen. Alle ruimte binnen en buiten, dat is hier te vinden!
Indeling:
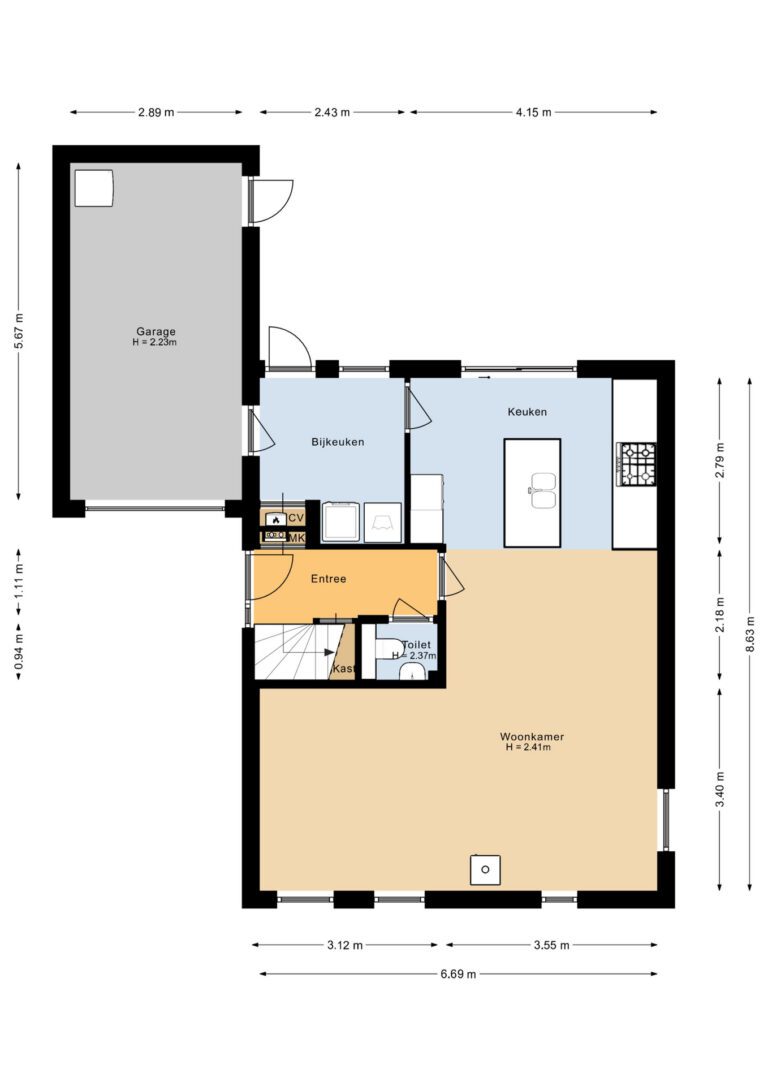
Entree, een gang met een toilet en een trapkast. De woonkamer is aan de voorzijde gelegen. De woonkamer heeft een houtkachel, het is een lichte ruimte door het extra raam aan de zijgevel. Aan de achterzijde is de uitgebreide keuken gelegen. Het spoeleiland heeft veel kastruimte aan beide zijden. De keuken is voorzien van een dubbele spoelbak, een gaskookplaat met afzuigkap, een ruime oven, een koelkast, vriezer en een vaatwasser. Heel praktisch is de naastgelegen bijkeuken. Hier vind je de wasmachine opstelling en een kast met de CV-opstelling. Binnendoor naar de garage kan via de bijkeuken.
Eerste etage
Doordat de woning is uitgebouwd boven de garage zijn er vijf goede slaapkamers. Handig is het aparte toilet op de overloop. De badkamer heeft een hoekbad, een wastafel in royaal meubel en een inloopdouche. Via een vlizotrap is de bergzolder te bereiken.
De woning ligt mooi in het midden op het perceel. Zo ontstaat er een diepe voortuin en een lange oprit voor meerdere auto’s. De achtertuin op het zuidwesten heeft een heerlijke overkapping, een handige schuur, een fraai uitzicht én avondzon.
Deze woning laten we je graag zien!














