Legewei 16, 17 Nij Beets.
Woonboerderij op werkelijk unieke locatie met veel privacy en voormalige boerderij als bijgebouw met daardoor veel mogelijkheden en ruimte.. Ruim 4 hectare oppervlak aan woonerf, bos, weiland en waterpartij. Ideaal voor combinatie van bijvoorbeeld woon/werk, recreatie en liefhebbers van natuur. Woonboerderij heeft 4 slaapkamers waarvan 1 op begane grond met badkamer.
Indeling woonboerderij:
Entree, hal met toilet, woonkamer met uitzicht over landerijen en vijverpartij, eetkeuken met inbouwappartuur, slaapkamer met badkamer met bad en wastafel, natte cel, grote overkapping natuurgericht.
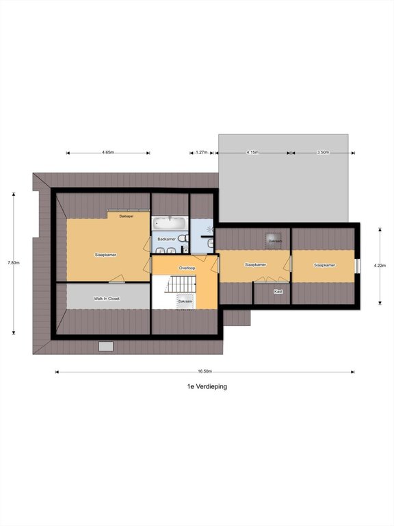
Verdieping woning:
3 slaapkamers waarvan 1 masterbedroom met walk-in closet, badkamer met bad, dubbele wastafel en toilet, 2de badkamer op verdieping met douche en wastafel.
Zolder woning:
Zolderberging voor opslag.
Bijgebouw begane grond:
Evt in te richten als mantelzorg- /recreatieve woning, praktijkruimte / kantoor. Geheel naar eigen wens verder in te richten.
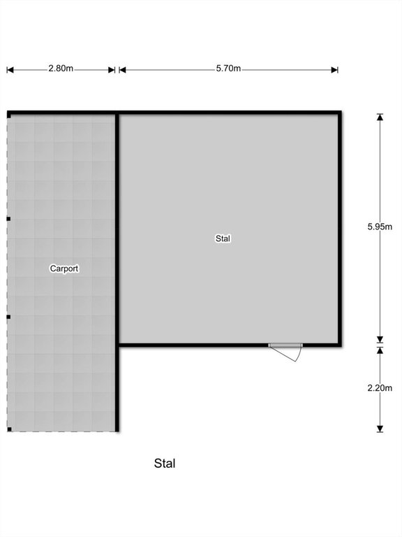
Voorhuis met keukenblok. Separaat toilet, paardenbox en ruime opslag voor meerdere doeleinden geschikt.
Bijgebouw verdieping:
Met vaste trap bereikbaar, ruimte voor slaapkamers of andere doeleinden.
Verdere bijgebouwen:
Dubbele carport achter de woning.
Verder nog 2 bijgebouwen waarvan 1 met carport en schuur en andere dubbele schuur.
Gehele perceel:
Het geheel ligt op meer dan 4 Hectare grond verdeeld in gedeelte woonerf, bos, vijverpartij en verschillende percelen weiland.
Omgeving:
Het geheel ligt nabij openvaarwater (Nije Feart) en er is mogelijkheid om een aanlegsteiger te realiseren.
Eenvoudig bereikbaar vanaf de A7. In het karaktervolle dorp Nij Beets zijn twee basisscholen en een supermarkt.
Mocht u deze woning willen bezichtigen neem dan snel contact op!

















