Jacob Hepkemastraat 12 Heerenveen
Zoekt u een aantrekkelijk geprijsde jaren 30 woning op loopafstand van het centrum van Heerenveen? Plan dan snel een bezichtiging!
In de geliefde en pittoreske wijk Heerenveen Noord staat deze helft van dubbele woning met een diepe achtertuin op het zuiden. Vanuit de achtertuin heeft u een prachtig uitzicht op de molen die vaak verlicht is en op zaterdagen draait. In 2021 heeft de bijkeuken een nieuwe dakbedekking gekregen en tevens is de vloer vernieuwd.
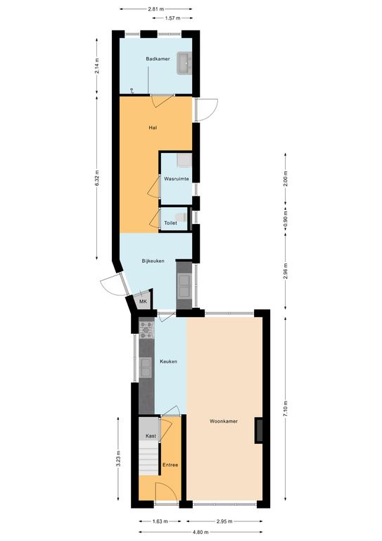
Indeling:
Entree, hal, bergkast, open keuken met inbouwapparatuur, eethoek en tv hoek, lange bijkeuken met uitgang naar steeg en achtertuin, toilet, washok, nieuwe badkamer (2018) met douche en ruime wastafel, diepe achtertuin met bergschuur (aan vervanging toe).
Op de verdieping:
Overloop, drie slaapkamers waarvan één over een wastafel beschikt en middels een deur toegang tot het platte dak heeft.
Wijk:
Heerenveen- Noord is een zeer gewilde en rustige woonwijk. Deze geliefde wijk beschikt over prachtige jaren 30 woningen en ligt op vijf minuten lopen van het centrum. Verder zijn alle faciliteiten zeer dichtbij gelegen, zoals het ziekenhuis, basisscholen, voortgezet onderwijs, speelterreinen, winkels, het theater, de bioscoop en verschillende horecagelegenheden.











