Bouwjaar 1700; We komen het niet vaak tegen. Dit prachtige monument is gelegen in de gezellige Hoofdstraat van Beetsterzwaag. Ooit waren het twee arbeidershuisjes, nu is het één woning die warmte en karakter uitstraalt. Aan de voorzijde gelegen in de ‘reuring’ van de Hoofdstraat, aan de achterzijde de rust van de fraai aangelegde besloten binnentuin op het Zuiden. U heeft hier alles bij de hand, de bakker is letterlijk naast de deur, de supermarkt bereikt u via uw poort aan de achtertuin. Laten we de woning eens van binnen bekijken.
Indeling:
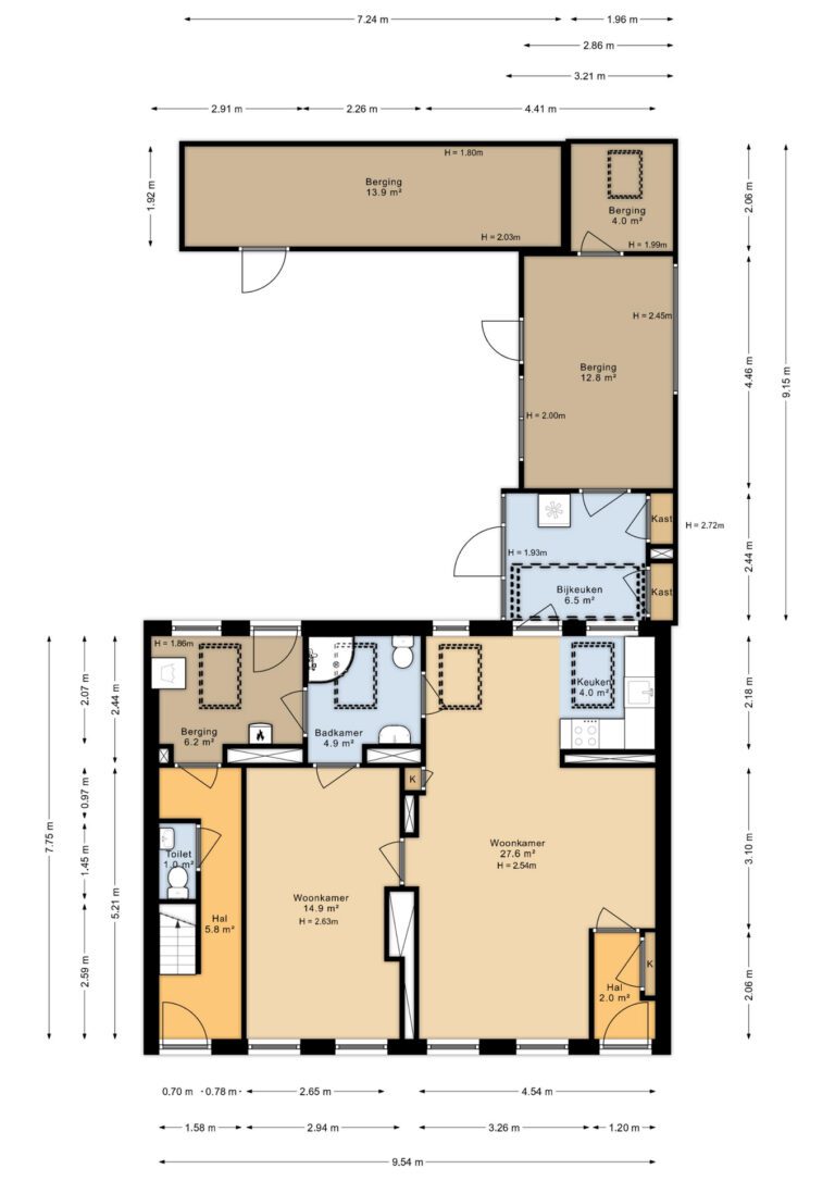
U komt binnen via de rechter voordeur en loopt de gang door. Via deze gang komt u in de gezellige eerste woonkamer. De woonkamer is licht en behaaglijk. Via deze woonkamer komt u in de keuken. De keuken is voorzien van een elektrische kookplaat en een vaatwasser. In de keuken is de toegang naar de bijkeuken en de schuur. Via de woonkamer komt u ook in de tweede woonkamer. Beide kamers zijn voorzien van een betonvloer met vloerverwarming als bijverwarming. Naast deze tweede woonkamer is de tweede gang, de entree van de voormalige tweede woning. Hier treft u het aparte toilet aan en de badkamer. De badkamer is voorzien van een douche, een wastafel en een tweede toilet. In deze gang is ook de trap naar de gehele eerste etage. Hier zijn twee slaapkamers en vaste kasten.
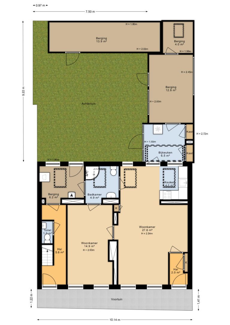
De tuin is een oase van rust. Het is in de zomer heerlijk genieten van de zon, de tuin ligt op het zuiden. Er is een afgesloten poort voor direct toegang tot de tuin.
Op de site Monumenten.nl wordt de woning als volgt omschreven:
“Twee woningen onder dwars zadeldak tussen topgevels met beitelingen. Een gemeenschappelijke schoorsteen met bord midden op de nok. Vier vensters met 24 ruiten ieder.”
Wij nodigen u van harte uit deze woning te komen bekijken.












