Hazzeleger 2 Beetsterzwaag
Dit vrijstaand herenhuis met dubbele garage en slaapkamer met badkamer op begane grond in goede buurt gelegen heeft vele mogelijkheden. Zoals B&B, dubbele bewoning, praktijk/werk aan huis enz.
Indeling:
entree, hal met toilet, ruime woonkamer, serre, woonkeuken met inbouwapparatuur, dubbele hal, slaapkamer, badkamer met douche, wastafel en toilet, bijkeuken, houten berging en tuin op het zuiden.
1ste verdieping woning:
3 slaapkamers, badkamer met douche, wastafel en toilet.
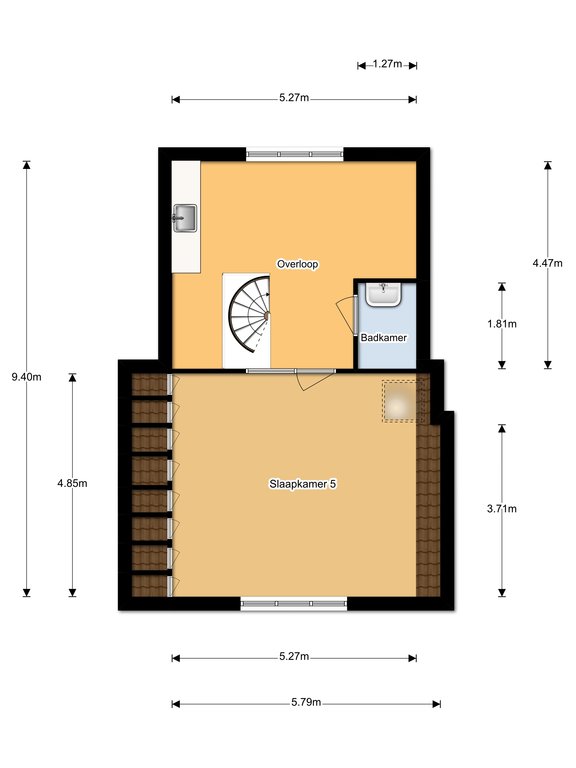
1ste verdieping boven garage/ uitbouw:
vaste trap naar ruime zitruimte, mogelijkheid voor toilet en douche boven, ruime kamer waarin nu biljarttafel.
2de verdieping woning:
vaste trap naar 2 slaapkamers en berging.
Ligging:
Gelegen in het dorp nabij entree naar het bos. De voorzieningen zijn op loopafstand. De schitterende 18 holes golfbaan van Golf en Country Club Lauswolt is ook vlakbij. De prachtige omgeving nodigt u uit voor een mooie wandeling en/of fietstocht. Bossen van Beetsterzwaag maken onderdeel uit van de Friese Wouden. Op korte afstand van de A7, Drachten/Heerenveen. Slechts een uur en kwartier rijden van Amsterdam.
Beetsterzwaag is een dorp in de Friese gemeente Opsterland, op korte afstand van Drachten en Heerenveen. Hoewel het niet de grootste kern van Opsterland is, is het gemeentehuis er gevestigd. Het dorp telt ongeveer 3.600 inwoners.
Beetsterzwaag was vroeger al een aanzienlijk dorp en is dat nog steeds. Niet omdat het zoveel inwoners had en heeft, maar vanwege de aanwezige adel die het aanzien van het dorp bepaalde. Diverse monumentale panden en tuinen in de Hoofdstraat, die minstens drie en een halve eeuw oud is, zijn stille getuigen van de adellijke bewoning in de 18e en 19e eeuw. Ook nu nog heeft het dorp dit karakter, gelegen te midden van uitgestrekte bossen en heidevelden en met een Hoofdstraat waar het prettig winkelen en vertoeven is. Beetsterzwaag kenmerkt zich door de fraaie landgoederen en haar mooie dorpskern waarin alle gewenste voorzieningen aanwezig zijn.















