Easterbuorren 5 Boornbergum
Midden in het dorp staat deze twee onder een kap met een verrassend diepe achtertuin en een mooi bijgebouw. Het betreft een kluswoning die nog verduurzamingen kan doormaken.
Indeling van de woning:
Via de voordeur komt u in de gang waar links een deur is naar de woonkamer. In deze woonkamer zijn verschillende authentieke elementen terug te vinden. Vervolgens komt u in de kleine woonkeuken die eenvoudig is. Daarnaast is er een toegang tot de trap en een kleine slaapkamer op de begane grond. Via de woonkeuken kunt u doorlopen naar de bijkeuken, hier bevinden zich het toilet en de doucheruimte.
Op verdieping:
Via een vaste steile trap komt u op de overloop en is er nog een slaapkamer.
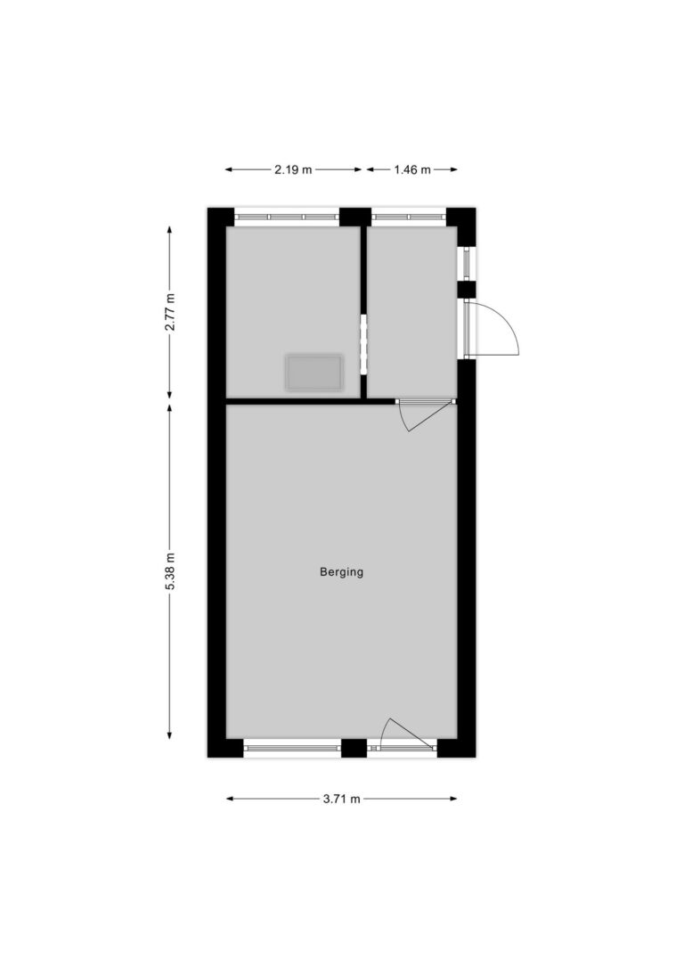
Naast de woning is een bijgebouw die vroeger als fietsenzaak is gebruikt. Dit bijgebouw met bergzolder is voor meerdere doeleinden geschikt en heeft ook een drietal verschillende ruimtes op de begane grond.
Tuin:
Het langgerekte perceel geeft een ruim beeld aan de tuin, dit komt in het perceeloppervlakte van 637m2 terug. In de tuin staan een tweetal bergingen waarin u spullen kunt opbergen.
Dorp:
Boornbergum is een dorp dat bijna tegen Drachten aanligt. Het heeft een gezellige kleine dorpskern met onder andere een dorpshuis, een bakker, een restaurant en snackbar. Daarnaast beschikt het dorp over verschillende sportverenigingen en heeft het een lagere school.
Hebben wij uw interesse gewekt? Neem dan contact op met ons kantoor.















