Alle media

De Walle

11

Drachten

Omschrijving

Altijd al willen wonen op een uniek plekje in Beetsterzwaag? Dan is dit uw kans!

Aan de rand van Beetsterzwaag, op 100 meter van het bos, met uitzicht over de weilanden, is deze levensloopbestendige semibungalow gelegen. Met een slaapkamer en een badkamer op de begane grond en twee extra kamers op de etage is het heerlijk wonen aan de Walle. De garage en de voldoende hoeveelheid bergruimte maken het woongemak compleet. De woning heeft een woonoppervlakte van 110m2 met op de begane grond de slaapkamer en fraaie ruime badkamer, en op de verdieping twee extra kamers, waarvan een met dakkapel.

Begane grond
Ruime en lichte entree met een meterkast en een aparte toilet. Vanuit de hal is er toegang tot de badkamer en de slaapkamer. De slaapkamer is aan de achterzijde van de woning gelegen. De badkamer is ruim en licht en is voorzien van een fraai badkamermeubel en een douche. In de woonkamer met half open keuken heeft u vrij uitzicht over de voortuin en het weiland aan de overzijde van de staat. De keuken is van alle gemakken voorzien en heeft een koelkast welke in februari 2024 nog is vervangen. Via de keuken is er toegang tot de praktische bijkeuken waar er plaats is voor het witgoed. Via deze bijkeuken komt u in de garage.

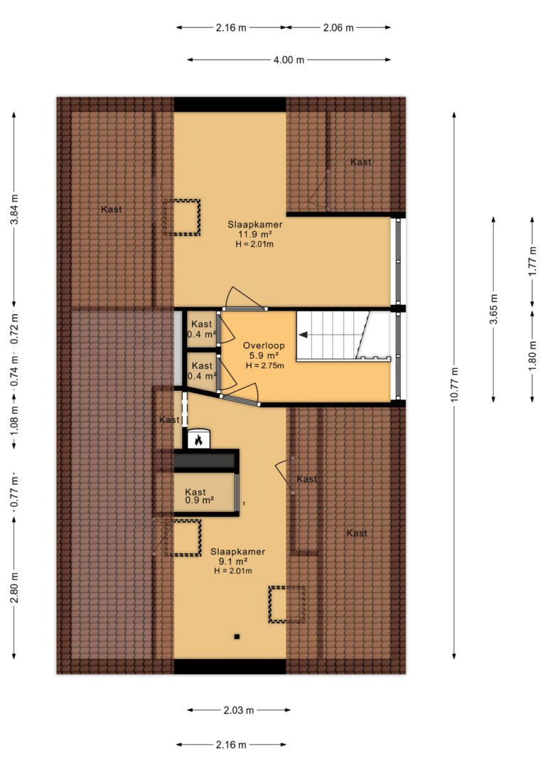
Op de etage
Via een vaste trap bereikt u de overloop met twee vaste kasten. Aan de rechterkant is een mooie slaap/-werkkamer. Door de dakkapel is hier een goede stahoogte en beschikt de kamer over veel licht. Aan de linkerzijde van de overloop is een tweede kamer. Hier is de opstelling van de cv ketel en meer vaste kasten.

Buiten
De woning ligt achter op het perceel waardoor u nog meer het gevoel van ruimte beleeft. Achter de woning is een kleine houten schuur en een heerlijk beschut terras.

Beetsterzwaag is gelegen op korte afstand van Drachten en Heerenveen aan de A7. Rondom Beetsterzwaag zijn veel bossen en een schitterende 18 holes golfbaan van Golf en Country Club Lauswolt. De bossen van Beetsterzwaag maken onderdeel uit van de Friese Wouden.

Belangrijke informatie

Status

Verkocht

Koopprijs

€ € 498.000 ,- k.k.,-

Conditie

Kosten koper

Aanvaarding

In overleg

Objecttype

Woonhuis

Deze woning bezichtigen?

Je krijgt van ons een eerlijk advies.

Uitgebreide kenmerken

Aanvullende informatie

Overdracht

Status

Verkocht

Vraagprijs

€ € 498.000 ,- k.k.

Conditie

Kosten koper

Aanvaarding

In overleg

Bouwvorm

Soort object

Woonhuis

Bouwjaar

1965

Bouwvorm

Bestaande bouw

Ligging

Aan bosrand
Aan rustige weg
Vrij uitzicht
Beschutte ligging
In bosrijke omgeving

Indeling

Woonoppervlakte

110 m²

Perceeloppervlakte

523 m²

Gebouwgebonden buitenruimte

Nog koppelen vanuit realworks

Overige inpandige ruimte

24 m²

Externe bergruimte

11 m²

Inhoud

491 m³

Aantal kamers

4

Aantal slaapkamers

3

Aantal woonlagen

2 woonlagen

Energie

Energieklasse

D

Energie einddatum

2029-11-24

Isolatie

Muurisolatie
Dubbel glas

Verwarming

Cv ketel

Buitenruimte

Tuin

Voortuin

Hoofdtuin

Achtertuin
Voortuin
Zijtuin

Oppervlakte hoofdtuin

232 m² (1440 m bij 1610 m)

Ligging hoofdtuin

Zuid

Achterom

Kwaliteit tuin

Normaal

Bergruimte

Schuur / Berging

Vrijstaand hout

Voorzieningen

Voorzien van elektra

Parkeergelegenheid

Parkeerfacilteiten

Garage

Aangebouwd steen

585
285
585

Dak

Soort dak

Zadeldak

Overige

Permanente bewoning

1

Onderhoud binnen

Goed

Onderhoud buiten

Goed

Huidig gebruik

523 m³

Perceeloppervlakte

523 m² m²

Huidige bestemming

Woonruimte

Voorzieningen

Voorzien van elektra

Kadastrale gegevens

Gemeente

Beetsterzwaag

Sectie

B

Perceelnummer

2833

Index

Oppervlakte

523 m²

Eigendoms situatie

Volle eigendom

Plattegrond

Op de kaart