Bommegaerde 86 Beetsterzwaag.
Deze instapklare uitgebouwde hoekwoning beschikt, zowel binnen als buiten, over verrassend veel ruimte. Tevens zijn er een fietsenberging, een veranda en twee parkeerplaatsen op eigen terrein. De woning is op een goede stand gelegen en bevindt zich op slechts 100 meter van het bos.
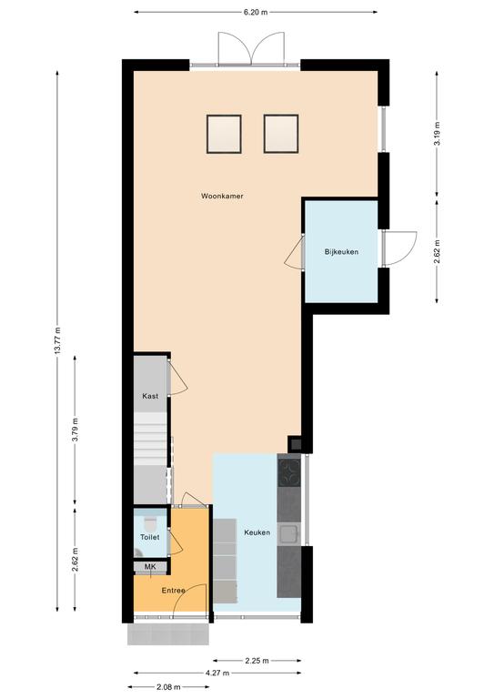
Indeling:
Entree, hal met toilet, nieuwe half open keuken met inbouwapparatuur (2021), eethoek, zithoek met openslaande deuren naar terras, bijkeuken, veranda en fietsenberging.
Eerste verdieping:
Drie slaapkamers, badkamer met douche, toilet en wastafel.
Tweede verdieping:
Vaste trap naar vierde slaapkamer, zolderberging en wasruimte.
Algemeen:
– CV HR bouwjaar 2007
– 10 zonnepanelen
– 334 m2 eigen grond
– 142 m2 woonoppervlakte
– Extra geluidsisolatie tussen aangrenzende woning
Omgeving:
Beetsterzwaag was vroeger al een aanzienlijk dorp en is dat nog steeds. Niet omdat het zoveel inwoners had en heeft, maar vanwege de aanwezige adel die het aanzien van het dorp bepaalde. Diverse monumentale panden en tuinen in de Hoofdstraat, die minstens drie en een halve eeuw oud is, zijn stille getuigen van de adellijke bewoning in de 18e en 19e eeuw. Ook nu nog heeft het dorp dit karakter, gelegen te midden van uitgestrekte bossen en heidevelden en met een Hoofdstraat waar het prettig winkelen en vertoeven is. Beetsterzwaag kenmerkt zich door de fraaie landgoederen en haar mooie dorpskern waarin alle gewenste voorzieningen aanwezig zijn.














